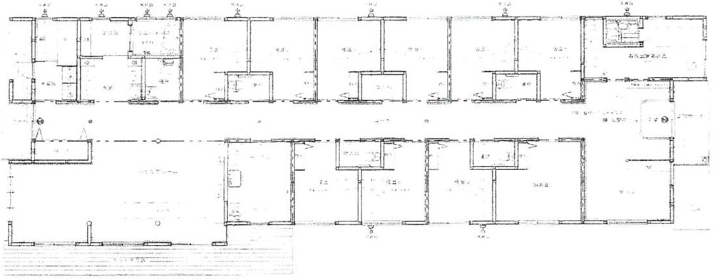
敷地約300坪の元グループホーム。間取り9LK
5,900万円(税込)
- 間取:9LK
- 土地面積:996.27m2
(約301.37坪) - 建物面積:346.16m2
(約104.71坪)
【物件概要】●所在/岡山市中区今谷●構造/木造平家建●築年月/平成14年3月●道路/北側約5m、南側約4m●交通/乙多見西バス停より約600m●設備/電気、上水道、浄化槽、プロパンガス、側溝●備考/グループホーム棟299.43m2、附属物置34.88m2●現況/空家●引渡/相談●取引態様/仲介
※掲載の物件は販売中に付き、契約済となる場合があります。
※間取図と現況が異なる場合は現況を優先します。
下の番号をタップすると
電話がかけられます
